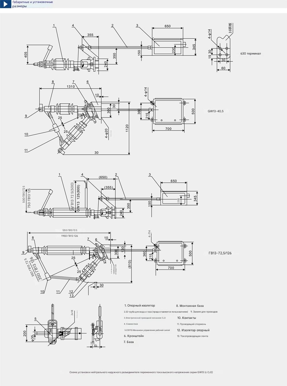
Разъединители нейтральной точки серии GW13 используются для отключения соединения нейтральной точки трансформатора в условиях отсутствия нагрузки. Когда нож переключателя находится в нормально разомкнутом положении, он может обеспечить изолирующее расстояние, которое соответствует требованиям безопасности. Выходной вал рабочего механизма может вращаться по горизонтали на 180 градусов, а позиционирующее устройство на рабочем механизме может гарантировать, что подвижный контакт и неподвижный контакт находятся в правильном положении или в отключенном положении.
Этот изолирующий выключатель нейтрали соответствует требованиям стандартов GB1985 «Высоковольтные изолирующие выключатели переменного тока и заземлители» и IEC-129 (1984). Он имеет надежную работу, безопасную эксплуатацию, простую конструкцию и удобен для установки и регулировки. Он широко используется на подстанциях 63 кВ-110 кВ. Основной продукт: GW13-40.5/630-8.
<ли>
<р>
Высота: нетболее 1000 м.
Температура окружающего воздуха: верхний предел +40 °C, нижний предел -40 °C.
Давление ветра: не более 700 Па.
Сейсмическая интенсивность: не более 8 баллов.
Толщина ледяного покрытия: не более 10 мм.
Степень загрязнения опорных изоляторов: обычный тип — класс 0, а устойчивый к загрязнению тип — в соответствии с требованиями пользователя.
Конструкция поворотного стола подшипника была улучшена, что позволило опоре подшипника достичь водонепроницаемой функции. Он также оснащен отверстием для впрыска масла и регулировочными винтами, что делает переключатель более интегрированным, а его обслуживание более простым и удобным.
Процесс пайки применяется между токопроводящим стержнем и контактом, а также между токопроводящим стержнем и гнездом контактного пальца. Кроме того, между контактным пальцем и гнездом контактного пальца установлено гибкое соединение, что значительно снижает сопротивление главной цепи изделия по сравнению с соединением винтами, тем самым уменьшая проблему нагрева контакта во время работы. Заземляющий стержень изготовлен из алюминиевого сплава с превосходной электропроводностью, а контактная часть изготовлена из медных отливок. Гибкие соединения установлены между соединительной частью токопроводящего стержня и основанием, а также между заземляющим контактным пальцем и гнездом контактного пальца, поэтому электрический Проводимость заземляющего контура значительно улучшена.
Все открытые токопроводящие части прошли процесс обработки поверхности с помощью серебряного покрытия из красной меди. После серебряного покрытия поверхность становится гладкой, красивой, имеет высокую коррозионную стойкость и долговечность.
Метод согласования между валом и отверстием был улучшен: изменение соответствия железа и меди на соответствие меди и меди или соответствие нержавеющей стали и меди решило проблему заедания, которая возникает при длительном использовании на открытом воздухе. Открытые стандартные части изготовлены из нержавеющей стали, а металлические части обработаны методом горячего цинкования,
что повышает коррозионную стойкость переключателя.

