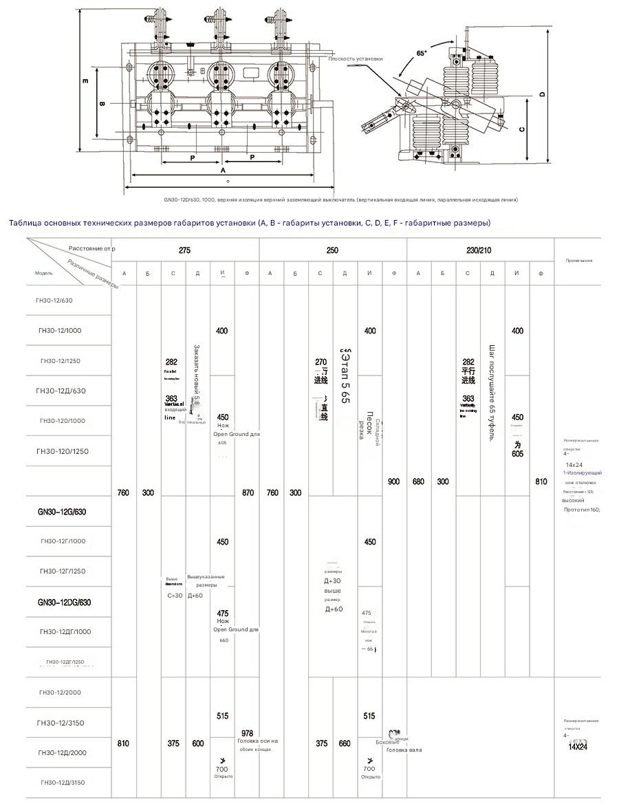
Поворотный внутренний высоковольтный разъединитель GN30 - 12 представляет собой тип разъединителя с поворотным ножом. Его основная конструкция состоит из двух наборов изоляторов и контактов, закрепленных на верхней и нижней плоскостях трехфазного общего основания. Размыкание и замыкание разъединителя достигается вращением ножа.
Выключатель GN30 - 12D разработан на основе выключателя GN30 - 12 с добавлением заземляющего ножа, который может соответствовать требованиям различных энергосистем. Этот продукт разработан с превосходными характеристиками, занимает меньше места и имеет сильную изоляционную способность. Он прост в установке и регулировке. Его характеристики соответствуют требованиям GB1985 - 89 «Высоковольтные разъединители и заземлители переменного тока». Он подходит для внутренних энергосистем с номинальным напряжением 12 кВ и частотой переменного тока 50 Гц или ниже и используется для размыкания и замыкания цепей при наличии напряжения, но отсутствии нагрузки. Его можно использовать вместе с высоковольтными распределительными шкафами или использовать отдельно.
Поворотный внутренний высоковольтный изолирующий выключатель GN30 - 12 представляет собой тип изолирующего выключателя с поворотным лезвием.

