Внутренний высоковольтный заземляющий разъединитель JN15-24 отличается простой и компактной конструкцией, а также надежными техническими характеристиками. Он соответствует требованиям GB1985-2004 «Высоковольтные разъединители и заземляющие разъединители переменного тока» и IEC62271-102: 2002. Подходит для внутренних энергосистем с номинальным напряжением 24 кВ для трехфазного переменного тока частотой 50(60) Гц.
Он имеет возможность замыкать короткое замыкание, что может защитить другое электрооборудование в распределительном устройстве от повреждения. Его можно использовать в сочетании с различными шкафами высоковольтных распределительных устройств и он служит в качестве защиты заземления, когда высоковольтное электрооборудование находится на обслуживании.

Нормальные условия эксплуатации внутреннего высоковольтного заземляющего выключателя JN15-24:
◇ Высота не превышает 1000 м;
◇ Температура окружающего воздуха: верхний предел составляет +40℃, а нижний предел составляет -25℃;
◇ Среднесуточная относительная влажность не более 95%, а среднемесячная относительная влажность не более 90%;
◇ Сейсмическая интенсивность не превышает 8 градусов;
◇ Степень загрязнения: II.
Основные технические параметры внутреннего высоковольтного заземлителя JN15-24:
|
|
|
|
|
| № | Наименование | Единица измерения | Параметр |
|
|---|
| 1 | Номинальный ток | кА | 12 |
|
| 2 | Номинальный ток withstand на короткое замыкание | кА | 31.5 |
|
| 3 | Номинальное время короткого замыкания | с | 4 |
|
| 4 | Номинальный ток замыкания короткого замыкания | кА | 80 |
|
| 5 | Номинальный пиковый ток withstand | кА | 80 |
|
| 6 | Номинальный уровень изоляции | 1 мин ное напряжение withstand импульсное напряжение withstand от молнии | кВ кВ | 42 75 |
| 7 | Механический ресурс | раз | 2000
|
|
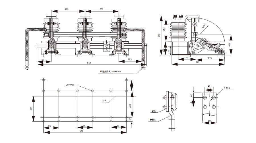
Внешний вид и установочные размеры внутреннего высоковольтного заземляющего разъединителя JN15-24:
